Dreifamilienhaus in ruhiger Höhenlage Nähe Koblenz — Raumwunder mit viel Potential
































- Objektart
- Haus
- Objekttyp
- Mehrfamilienhaus
- Vermarktungsart
- Kauf
- PLZ
- 56283
- Ort
- Nörtershausen
- ImmoNr
- TIK-146–26
- Wohnfläche
- ca. 290 m²
- Grundstücksgröße
- ca. 697 m²
- Anzahl Zimmer
- 12
- Anzahl Badezimmer
- 3
- Kaufpreis
- 325.000,00 €
- Baujahr
- 1971
- Endenergieverbrauch
- 64 kWh/(m²a)
- Energieausweis
- Verbrauchsausweis
- Energieausweis gültig bis
- 19.10.2035
- Energieeffizienzklasse
- B
- Außen-Provision
- 3,57
- wesentlicher Energieträger
- Öl
Beschreibung
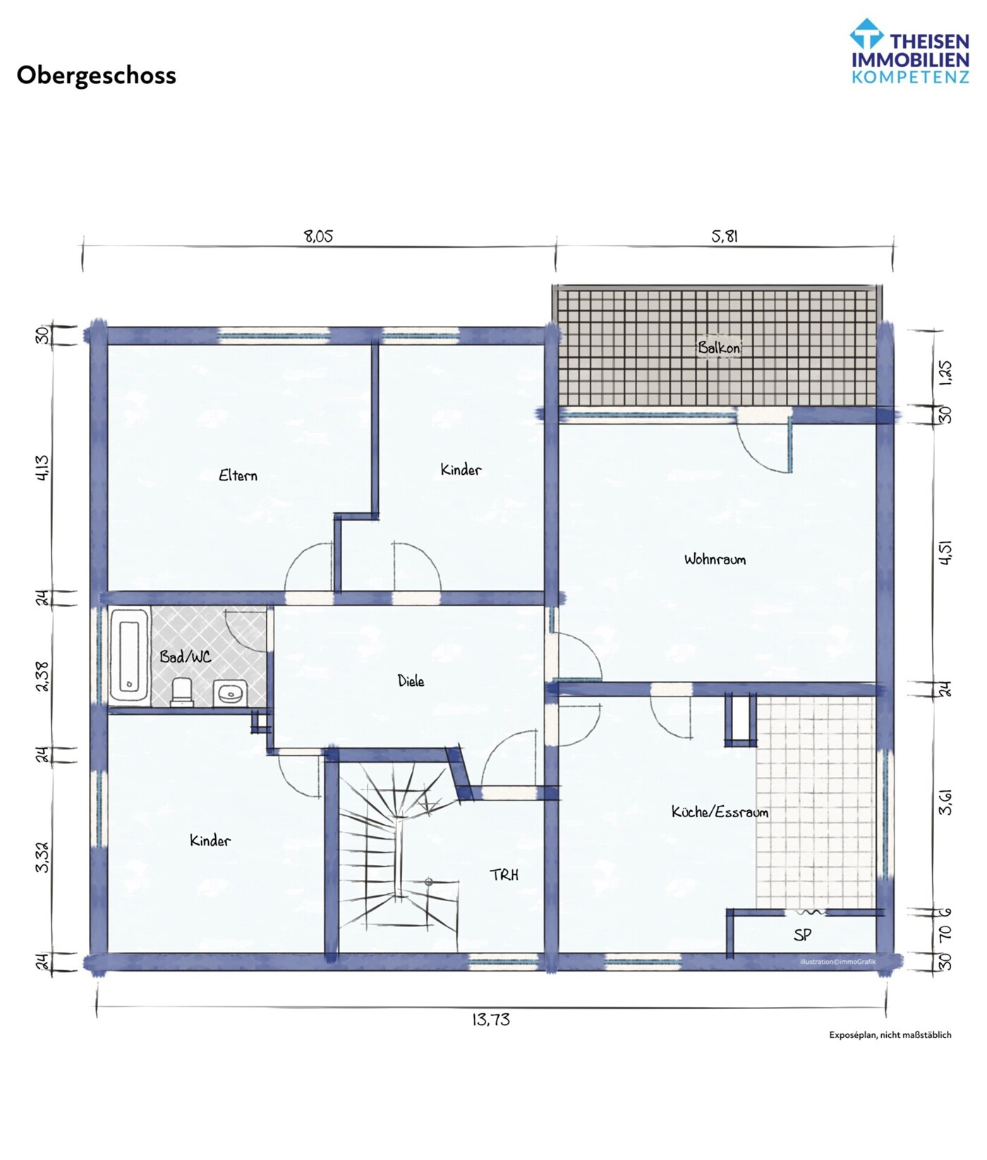
Dieses interessante Dreifamilienhaus (Baujahr 1971) befindet sich in attraktiver Höhenlage im Hunsrück – mit schöner Weitsicht und zugleich nur ca. 15 Fahrminuten von Koblenz entfernt. Durch die vorteilhafte Ausrichtung profitieren die Balkone von vielen Sonnenstunden.Die Immobilie verfügt über drei Wohneinheiten mit identischen Grundrissen und bietet insgesamt ca. 290 m² Wohnfläche auf drei Etagen. Jede Wohnung ist funktional geschnitten und besteht aus vier Zimmern, Küche/Essen, Bad, Abstellraum und Diele – ideal geeignet für Familien mit 4–5 Personen.
Die Wohnungen im Erdgeschoss und Obergeschoss verfügen jeweils über ca. 106 m² Wohnfläche und sind jeweils mit Balkonen ausgestattet. Die Dachgeschosswohnung ist bei gleicher Aufteilung aufgrund der Dachschrägen mit ca. 76 m² ausgewiesen. Für die Wohnung im Dachgeschoss besteht die Möglichkeit der Gartennutzung auf dem ca. 697 m² großen Grundstück.
Teilungserklärungen der Wohneinheiten sind bereits vorhanden.
Technisch präsentiert sich das Objekt in weiten Teilen solide: Die zentrale Ölheizung stammt aus dem Jahr 2017 und ist mit neuwertigen Kunststofftanks ausgestattet. Die meisten Fenster wurden bereits erneuert und sind doppelt verglast. Eine zusätzliche Fassadendämmung trägt zu moderaten Energiekosten und zu einer Effizienzklasseneinstufung B bei.
Feuchtigkeitsschäden im Erdgeschoß wurden behoben.
Zum Haus gehören 2 Garagen sowie 2 Stellplätze.
Mittelfristig sinnvolle Nachbesserungen: die Elektrik, die Fenster im Flur/Dachschrägen, Isolierung der Rollladenkästen. Sanierung Bad im OG : Feuchtigkeit mit Pilzbildung im Badezimmer. Der aktuelle Mietspiegel bietet erkennbares Entwicklungs-potential; die Wohnung im 1. Obergeschoss steht seit 12/2025 leer und kann nach Renovierung kurzfristig bezogen oder neu vermietet werden.
Ein attraktives Renditeobjekt mit solider Substanz, guter Lage nahe Koblenz und weiterem Wertsteigerungspotential.
Lage
Das Mehrfamilienhaus befindet sich in ruhiger Wohnlage in Nörtershausen, einer gefragten Gemeinde im Vorderhunsrück mit angenehmem, naturnahem Umfeld. Die Immobilie überzeugt durch ihre verkehrsgünstige Anbindung: Die A 61 in Richtung Köln und Ludwigshafen erreichen Sie in nur wenigen Minuten, wodurch auch weiter entfernte Ziele schnell und komfortabel angebunden sind. Koblenz ist ebenfalls in kurzer Fahrzeit erreichbar und bietet eine sehr gute Infrastruktur, vielfältige Einkaufs- und Freizeitmöglichkeiten sowie ein breites kulturelles Angebot.Die Nahversorgung ist im näheren Umfeld gut gewährleistet. Ärzte und weitere Einrichtungen des täglichen Bedarfs stehen im benachbarten Buchholz in kurzer Fahrdistanz zur Verfügung. Auch das reizvolle Moseltal liegt nur wenige Kilometer entfernt und bietet einen hohen Freizeit- und Erholungswert mit attraktiven Ausflugszielen, Wanderwegen und landschaftlich ansprechender Umgebung. Insgesamt verbindet die Lage eine ruhige Wohnatmosphäre mit einer guten Erreichbarkeit wichtiger Zentren und einer hohen Lebensqualität.
Bildergalerie
Ansprechpartner
Herr Hans-Werner Theisen
Güntherstr.1
56626 Andernach
Telefon1
+4915170054693
mobile
+4915170054693
Email
info@theisen-immobilienkompetenz.de
Kontakt
Sie möchten eine Immobile erwerben oder verkaufen?
Wir freuen uns auf Ihre Anfrage.
Menü
Adresse
Güntherstraße 1
56626 Andernach
Adresse
Güntherstraße 1
56626 Andernach
Menü
© THEISEN Immobilienkompetenz 2025
Seiten: 1