Charmantes Familienhaus mit großem Garten in ruhiger und zentraler Wohnlage von Mayen


























- Objektart
- Haus
- Objekttyp
- Einfamilienhaus
- Vermarktungsart
- Kauf
- PLZ
- 56727
- Ort
- Mayen
- ImmoNr
- TIK-123–25
- Wohnfläche
- ca. 153 m²
- Grundstücksgröße
- ca. 285 m²
- Anzahl Zimmer
- 8
- Anzahl Badezimmer
- 1
- Kaufpreis
- 229.000,00 €
- Baujahr
- 1934
- Endenergiebedarf
- 429,7 kWh/(m²a)
- Energieausweis
- Bedarfsausweis
- Energieausweis gültig bis
- 02.09.2035
- Energieeffizienzklasse
- H
- Außen-Provision
- 3,00
- wesentlicher Energieträger
- Gas
Beschreibung
Willkommen in Ihrem neuen Zuhause in Mayen, einem charmanten Einfamilienhaus, das 1934 erbaut wurde . Dieses attraktive Reiheneckhaus bietet eine ideale Kombination aus zentraler Lage und ruhigem Wohnumfeld, perfekt für Familien. Mit einer Wohnfläche von ca. 153 m² auf drei Etagen und einem großzügigen Grundstück von 285 m² bietet diese Immobilie genügend Raum für individuelle Gestaltungsmöglichkeiten.Schauen Sie sich gerne unseren virtuellen 360o Rundgang an, um sich einen besseren Eindruck zu verschaffen: https://app.immoviewer.com/portal/tour/3136959
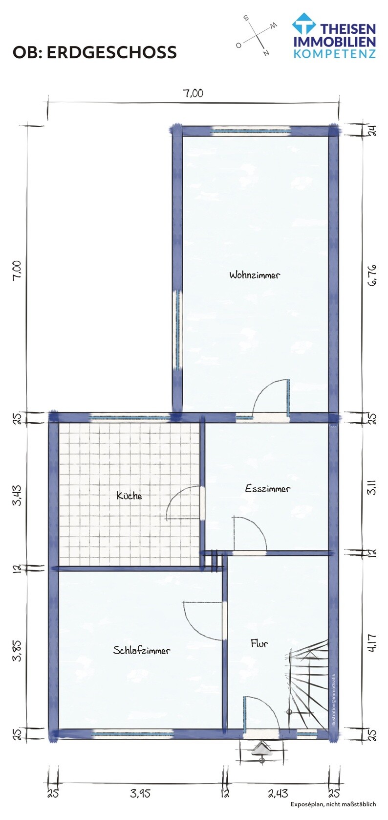
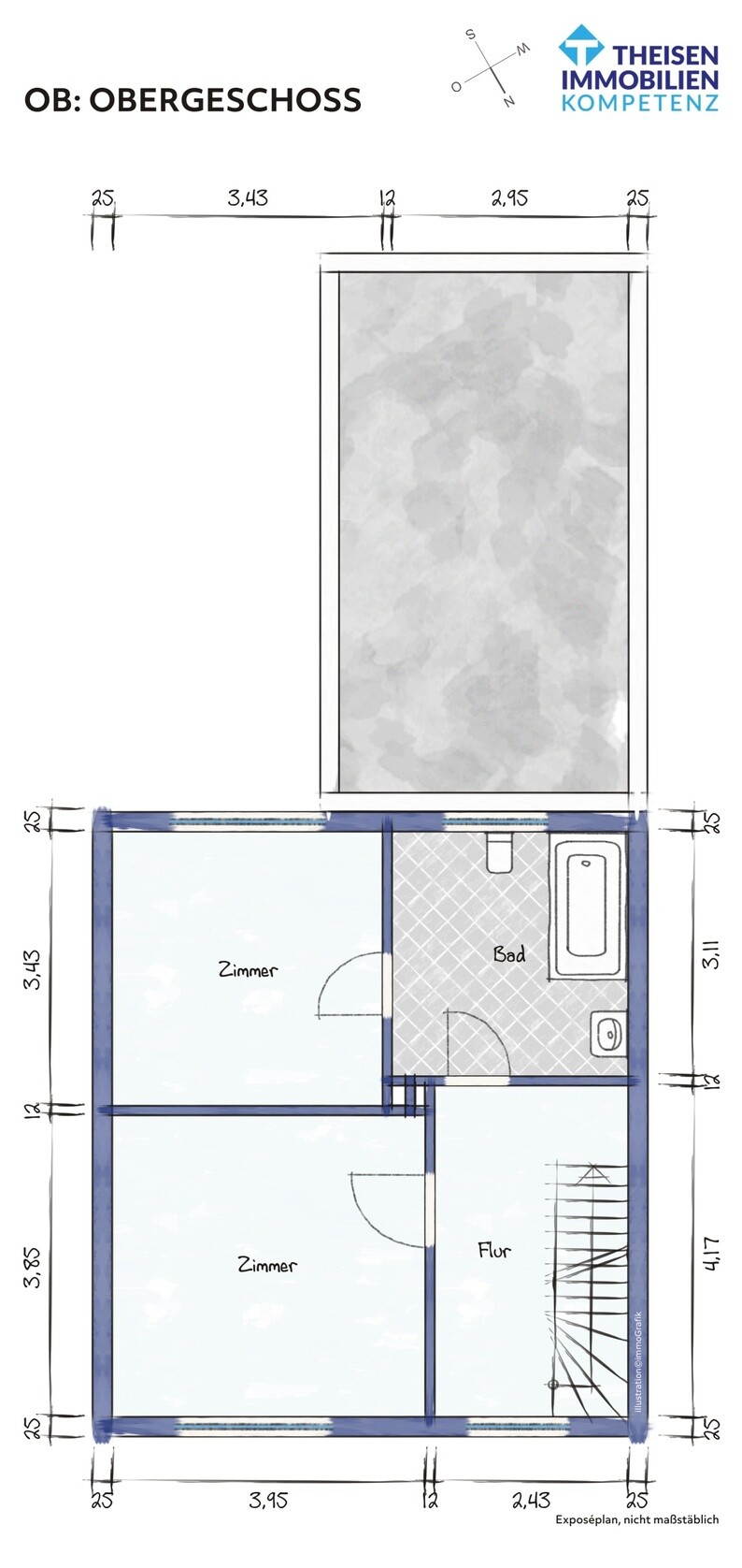
Die Erdgeschossfläche wurde in den 70 er Jahren erweitert und verfügt über ca.70m² Wohnfläche. Hier finden Sie ein Büro, eine Küche, ein Esszimmer, ein Wohnzimmer sowie ein Gäste-WC. Vom Erdgeschoss aus haben Sie direkten Zugang zur Terrasse und zu einem großen Garten, der zum Entspannen und Verweilen einlädt. Das Obergeschoss bietet ca. 45m² Wohnfläche, verteilt auf zwei gemütliche Schlafzimmer, ein modernes, 2021 erneuertes Bad und ein zusätzliches WC. Das Dachgeschoss, mit einer Wohnfläche von ca. 35m², wurde in den 90er Jahren ausgebaut und verfügt über weitere zwei Schlafzimmer. Durch das Bruchsteinmauerwerk ist im Keller immer etwas Restfeuchte spürbar. Die Basaltsteinelemente der Fassade unterstreichen den historischen Charme der Immobilie. Die energetische Sanierung, der Austausch der alten Fenster sowie die Dacheindeckung des Anbaus bieten Potential zur Wertsteigerung.
Trotz einiger Renovierungsmaßnahmen, bleibt das Haus eine attraktive Option für Kaufinteressenten. Die Anmietung einer Garage, in direkter Nachbarschaft, ist möglich.
Lage
Das Einfamilienhaus befindet sich in einer attraktiven und ruhigen Wohngegend der charmanten Stadt Mayen.Einkaufsmöglichkeiten, Schulen, Kindergärten und medizinischen Einrichtungen, sind bequem zu Fuß zu erreichen. Mayen besticht durch seine historische Altstadt mit zahlreichen kulturellen Angeboten und regelmäßigen Veranstaltungen, die für eine hohe Lebensqualität sorgen.
Verkehrstechnisch ist Mayen gut angebunden an die A61 und A 48, sodass größere Städte der Umgebung problemlos erreichbar sind (Koblenz-Bonn-Trier etc.) Die ruhige und zentrumsnahe Wohnlage ermöglicht dennoch ein entspanntes und naturnahes Wohnen, fernab vom hektischen Treiben der Großstädte. Diese Immobilie ist ideal für Familien geeignet, die sowohl die Nähe zur Natur als auch die Vorzüge des städtischen Lebens schätzen.
Bildergalerie
Ansprechpartner
Herr Hans-Werner Theisen
Güntherstr.1
56626 Andernach
Telefon1
+4915170054693
mobile
+4915170054693
Email
info@theisen-immobilienkompetenz.de
Kontakt
Sie möchten eine Immobile erwerben oder verkaufen?
Wir freuen uns auf Ihre Anfrage.
Menü
Adresse
Güntherstraße 1
56626 Andernach
Adresse
Güntherstraße 1
56626 Andernach
Menü
© THEISEN Immobilienkompetenz 2025
Seiten: 1