Repräsentatives Wohn- und Geschäftshaus im idyllischen Vinxtbachtal — Nähe Bad-Breisig
























- Objektart
- Haus
- Objekttyp
- Wohn- und Geschäftshaus
- Vermarktungsart
- Kauf
- PLZ
- 53498
- Ort
- Gönnersdorf
- ImmoNr
- UU085
- Wohnfläche
- ca. 324 m²
- Grundstücksgröße
- ca. 3.314 m²
- Nutzfläche
- ca. 149 m²
- Anzahl Zimmer
- 10
- Anzahl Badezimmer
- 3
- Kaufpreis
- 460.000,00 €
- Baujahr
- 1966
- Endenergiebedarf
- 208,6 kWh/(m²a)
- Energieausweis
- Bedarfsausweis
- Energieausweis gültig bis
- 23.10.2034
- Energieeffizienzklasse
- G
- Außen-Provision
- zuzüglich 3,57 % inkl. MwSt. vom beurkundeten Kaufpreis
- wesentlicher Energieträger
- Öl
Beschreibung
Angeboten wird ein Wohn- und Geschäftshaus, Baujahr 1966, in Gönnersdorf im idyllischen Vinxtbachtal. Die Grundstücksgröße beträgt 3.314 m² und teilt sich in bebaubare Flächen sowie ein Waldgrundstück.Die Immobilie umfasst 3 Etagen mit ca. 324 m² Wohnfläche sowie eine angebaute Lagerhalle mit 148,95 m² Nutzfläche.
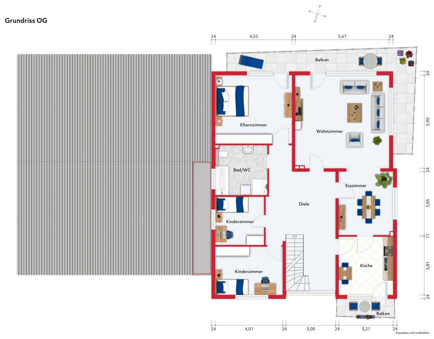
Die gesamte Wohnfläche im Erdgeschoss beträgt 92,60 m². Diese unterteilt sich in ein Wohnzimmer, zwei Büros, einen Abstellraum und ein Bad. Die Ausstattung sollte saniert werden, eine Umgestaltung zu Wohnfläche ist möglich. Das Obergeschoss verfügt über 134m² Wohnfläche. Das große Wohn-Esszimmer mit Balkonen zum Garten bildet das Herzstück der Etage. Hinzu kommen drei Schlafzimmer, eine Küche und ein Bad.
Der Ausbau des Dachgeschosses erfolgte im Jahr 2000. Gleichzeitig wurden im gesamten Haus die doppelverglasten Fenster erneuert, der Dachstuhl isoliert und die Elektrik modernisiert. Mit den Dachschrägen bietet die Etage 97,10 m² Wohnfläche. Der offene Wohn-Esszimmer-Küchenbereich mit Gartenblick dominiert die Etage. Zwei Schlafzimmer und ein Bad runden das Raumangebot ab. Die Dacheindeckung befindet sich in einem zeitgemäßen Zustand.
Das Haus verfügt derzeit über funktionstüchtige Ölheizung.
Das Gebäude verfügt über eine 30 cm dicke Betonbodenplatte, das Mauerwerk besteht aus 24 cm Bimssteinen. Die Bodenplatte der Lagerhalle ist auf Streifenfundamenten errichtet. Die Waldfläche von über 2000 m² ist ideal für den Eigenbedarf an Brennholz.
Insgesamt bietet die Immobilie vielfältige Nutzungsmöglichkeiten:
‑Mehrgenerationenhaus mit Hobby- oder Gewerbefläche
‑Nutzung als Zweifamilienhaus mit zusätzlichem Gewerbeanteil und Büroflächen
‑Nutzung als Dreifamilienhaus mit separater Vermietung der Lagerhalle.
Lage
Die Immobilie liegt in Gönnersdorf, einer ruhigen Gemeinde im Landkreis Ahrweiler, umgeben von Natur. Einkaufsmöglichkeiten für den täglichen Bedarf sowie Apotheken und Ärzte sind in den umliegenden Orten, vor allem in Bad Breisig, schnell erreichbar.Die Verkehrsanbindung über die A61 ist hervorragend, wodurch Bonn, Koblenz und auch Andernach in etwa 20 bis 30 Minuten mit dem Auto erreichbar sind.
Andernach bietet zusätzlich eine breitere Auswahl an Einkaufsmöglichkeiten, Restaurants sowie umfassende medizinische Versorgung. Öffentliche Verkehrsanbindungen wie Buslinien und nahegelegene Bahnhöfe in Bad Breisig und Sinzig bieten zudem gute Verbindungen in die Region.
Die Umgebung bietet zahlreiche Freizeitmöglichkeiten, darunter Wandern, Radfahren und Wassersport am Rhein.
Bildergalerie
Ansprechpartner
Herr Hans-Werner Theisen
Güntherstr.1
56626 Andernach
Telefon1
0151 7005 4693
mobile
0151 7005 4693
Email
info@theisen-immobilienkompetenz.de
Kontakt
Sie möchten eine Immobile erwerben oder verkaufen?
Wir freuen uns auf Ihre Anfrage.
 
															Menü
Adresse
Güntherstraße 1
56626 Andernach
Adresse
Güntherstraße 1
56626 Andernach
Menü
© THEISEN Immobilienkompetenz 2025
Seiten: 1
     
															 
															 
								